Xây dựng Thủ Đô xin giới thiệu với bạn đọc mẫu thiết kế biệt thự sang trọng trên sườn núi ở Stuttgart, Đức. Ngôi biệt thự được thiết kế với phong cách sống mới hiện đại của chủ sở hữu. Nằm trong một khu dân cư đông đúc, ngôi nhà toát lên vẻ đẹp tươi sáng trong không khí mát lành của đồi núi và có tầm nhìn rộng ra khu vực xung quanh. Biệt thự được xây dựng trên mảnh đất rộng hơn 2.000 feet vuông đã mang đến lối sống hiện đại phù hợp với chủ sở hữu của nó.

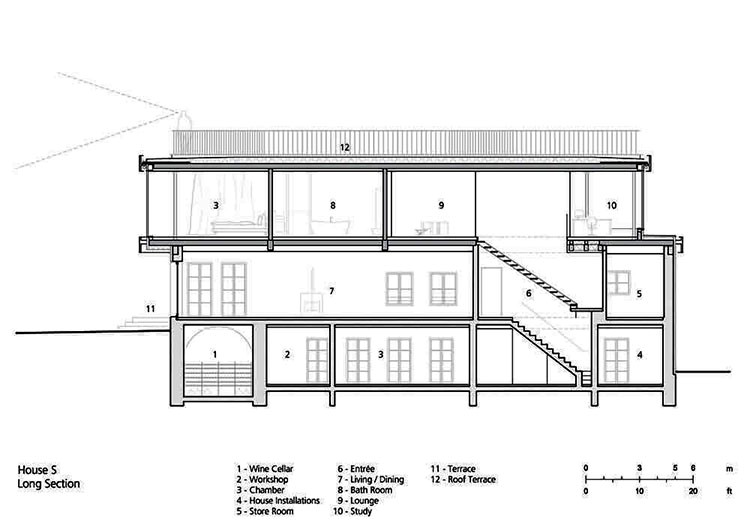
Ngôi biệt thự được xây dựng trên 2000 feet vuông với mặt tiền sử dụng tông màu đen và trắng là điểm nổi bật của kiến trúc này và trở thành một điểm nhấn trong thiết kế nhà của toàn khu phố. Thiết kế biệt thự 3 tầng với 1 tầng hầm và 2 tầng nổi trên sườn đồi được bao phủ bởi cấy cối xanh mướt, tầng 3 của ngôi biệt thự sử dụng ô cửa kính lớn nhìn ra toàn cảnh thành phố miền nam Stuttgart


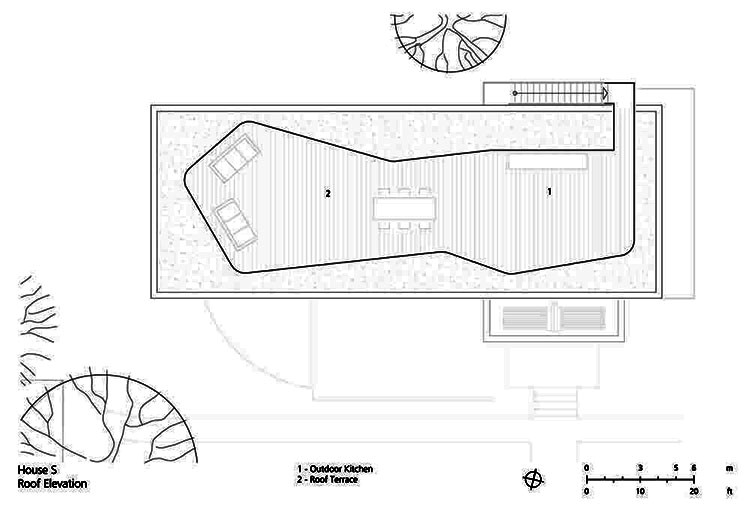
Mẫu biệt thự hiện đại này thay thế hai tầng mái dốc với các sàn seond kiểu dáng đẹp, mở rộng không gian sàn . Một sân thượng bằng phẳng mở rộng mang tầm nhìn tuyệt đẹp tới khu phố lân cận.


Kiến trúc sư sắp đặt các mẫu nội thất ngoài trời, đưa chúng ta đến gần với khung cảnh thiên nhiên. Lên tầng trên khung cảnh thiên nhiên bao quanh, hình thành một kết nối trong suốt giữa trong nhà và ngoài trời nhưng có thể bị mờ với cửa chớp lăn lưới kim loại được gắn vào bên ngoài.



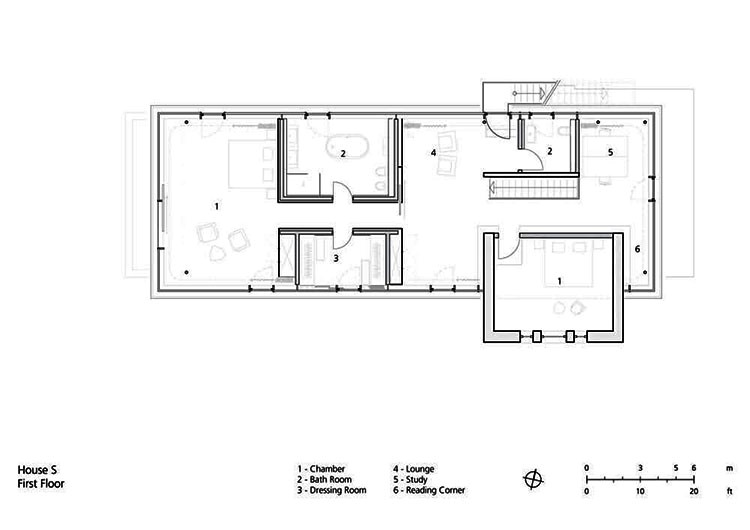
Tầng trên cùng là không gian riêng cho các thành viên trong gia đình, một phòng thay đồ, phòng tắm, phòng khách. Mỗi phòng được ngăn cách bởi một cửa kính trượt lớn chia tầng trên từ các khu vực tổng thể và các khu vực của khách với một phòng khách, cầu thang bên trong, một thư viện, một nhà office. Cầu thang bên ngoài dẫn lối từ tầng 1 lên sân thượng, trên sân thượng sàn được ốp gỗ bằng phẳng.


Với kiến trúc hiện đại sử dụng những ô cửa kính lớn định hướng về phía ánh sáng mặt trời tự nhiên giúp cho việc thiết kế phòng tắm trên tầng hai kết hợp giữa màu đen với kính lớn mở ra thiên nhiên ngập tràn trong phòng, không gian trong nhà trực quan với môi trường xung quanh




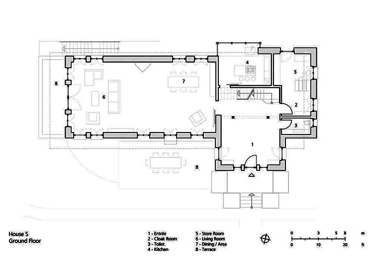
Mặt bằng các tầng




Mặt đứng mặt cắt


HÃY GỌI NGAY CHO CHÚNG TÔI ĐỂ ĐƯỢC NHÂN VIÊN TƯ VẤN KĨ HƠN NHÉ.
THÔNG TIN LIÊN HỆ
Liên hệ để được tư vấn: 0915.9999.25
Trân trọng!
Công ty Cổ phần Xây dựng Thủ Đô